7100 SAINT-VASST
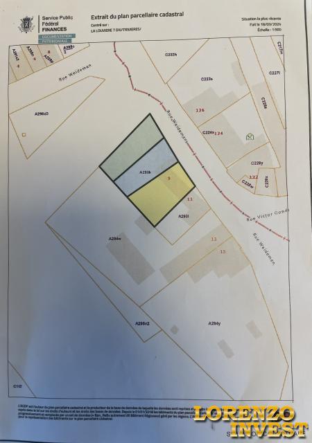
Située à Saint-Vaast, l’Immobilière Lorenzo Invest vous propose une parcelle de terrain LOT 2 du plan ci-joint, en zone d'habitat, aux abords de toutes les commodités : écoles, commerces, accès autoroutes et Delhaize.
Ayant une façade de +/- 6,21 mètres et une profondeur de 22,30 mètres.
Ci-joint les prescriptions urbanistiques reçu par la Ville de La Louvière relatives au terrain et le plan de division https://www.lalouviere.be/ma-ville/service-communaux/autorisations-permis-infractions-urbanisme/documents/reglementations/reglementations/telechargez/le-reglement-communal-durbanisme.pdf
PRIX : Faire offre à partir de 49.000€ sous réserve d'acceptation par les propriétaires.
Les frais d'agence sont à charge de l'acheteur pour un montant de 3.000€ HTVA.
L'acheteur prendra à sa charge 50% des frais de division du terrain.
VISITES : Sur rendez-vous au 0493/ 05.57.51
IMMOBILIERE LORENZO INVEST - ESTIMATION GRATUITE DE VOTRE BIEN SANS AUCUN ENGAGEMENT
49.000€


